Referenzen News Förderungen
Rhomberg Gruppe Rhomberg Bau
  • Immobilien
    Zwei grüne Kreise mit Text "Profitieren Sie von der hohen Wohnbauförderung 2025/26!" und "Gebührenbefreiung" (Vorarlberg).
    Jetzt sichern!
    Mehr erfahren
    Alle Immobilien anzeigen Vorarlberg Wien und Niederösterreich Baden-Württemberg und Bayern (D)
    Kauf Miete/Pacht
    Kauf Miete/Pacht
  • Leistungen
    Eine Couch auf einem Stück Land mit Gras und Erdschichten. Eine rote Sprechblase sagt: "GRUNDlos glücklich sein" (Grundstücksverwertung, Verkaufen).
    Wir suchen Grundstücke
    Mehr erfahren
    Bauen Umbau und Sanierung Immobilien- und Standortentwicklung Baumaterial und Recycling Rhomberg Energie Dienstleistungen Produkte Privatkunden
    Hochbau Tiefbau General- & Totalunternehmer Systembau Bauservice & Kleinbaustellen
    Standortsuche Immobilienbewertung & -analyse Projektentwicklung - Wohnen Projektentwicklung - Gewerbe Bau- & Projektmanagement Finanzierung & Marketing
    Steinbruch Hohenems Rückbau & Abbrucharbeiten Recycling & Entsorgung Asphalt Beton
    Der ganzheitliche 360°-Potenzial-Ansatz für Ihr Gebäude 360°-Energiekonzepte Dach-Photovoltaikanlagen Fassadenintegrierte Photovoltaik Ladelösungen Photovoltaik-Carport Energie- und Lastmanagement
    Immobilienberatung & -management Immobilienverwaltung Integrale Planung
    DAVID Microliving Smart Balkon Mitarbeiterwohnen
  • Holzbau
    Das Illwerke Zentrum Montafon mit einer Holzfassade und vielen Fenstern, einer Wiese und Bergen unter blauem Himmel (Norman, Müller).
    Ihr Holzbau-Projekt in besten Händen
    Mehr erfahren
    Mehrgeschossiger Wohnbau Büro-, Verwaltungs- und Gewerbebau Care – Pflege- und Gesundheitseinrichtungen Kitas und Bildungseinrichtungen Hotels Nachverdichtung & Aufstockung Serielle thermische Sanierung
  • Karriere
    Rhomberg Bau Mitarbeiter mit Schutzhelm und rotem Hintergrund, lächelnd und blickt zur Seite (Stellen).
    Aktuelle Stellenangebote
    Mehr erfahren
    Das sind wir Stellenportal Rhomberg als Arbeitgeber Lehre Schüler:innen & Student:innen Leben & Arbeiten in Vorarlberg FAQ & Kontakt
  • Über uns
    Frau präsentiert das Rhomberg Kundenmagazin "Neue Dimensionen" gedruckt und als Online-Version auf einem Smartphone.
    Online Magazin
    Mehr erfahren
    Unternehmen Verantwortung & Engagement Innovation
    Organisation Geschichte Leitbild Standorte Zertifikate & Auszeichnungen
    Compliance Unser integriertes Managementsystem Nachhaltigkeit
  • Magazin
Referenzen News Förderungen
Immobilien
Zwei grüne Kreise mit Text "Profitieren Sie von der hohen Wohnbauförderung 2025/26!" und "Gebührenbefreiung" (Vorarlberg).
Jetzt sichern!
Mehr erfahren
Alle Immobilien anzeigen
Vorarlberg
Kauf
Miete/Pacht
Wien und Niederösterreich
Baden-Württemberg und Bayern (D)
Kauf
Miete/Pacht
Leistungen
Eine Couch auf einem Stück Land mit Gras und Erdschichten. Eine rote Sprechblase sagt: "GRUNDlos glücklich sein" (Grundstücksverwertung, Verkaufen).
Wir suchen Grundstücke
Mehr erfahren
Bauen
Hochbau
Tiefbau
General- & Totalunternehmer
Systembau
Bauservice & Kleinbaustellen
Umbau und Sanierung
Immobilien- und Standortentwicklung
Standortsuche
Immobilienbewertung & -analyse
Projektentwicklung - Wohnen
Projektentwicklung - Gewerbe
Bau- & Projektmanagement
Finanzierung & Marketing
Baumaterial und Recycling
Steinbruch Hohenems
Rückbau & Abbrucharbeiten
Recycling & Entsorgung
Asphalt
Beton
Rhomberg Energie
Der ganzheitliche 360°-Potenzial-Ansatz für Ihr Gebäude
360°-Energiekonzepte
Dach-Photovoltaikanlagen
Fassadenintegrierte Photovoltaik
Ladelösungen
Photovoltaik-Carport
Energie- und Lastmanagement
Dienstleistungen
Immobilienberatung & -management
Immobilienverwaltung
Integrale Planung
Produkte
DAVID Microliving
Smart Balkon
Mitarbeiterwohnen
Privatkunden
Holzbau
Das Illwerke Zentrum Montafon mit einer Holzfassade und vielen Fenstern, einer Wiese und Bergen unter blauem Himmel (Norman, Müller).
Ihr Holzbau-Projekt in besten Händen
Mehr erfahren
Mehrgeschossiger Wohnbau
Büro-, Verwaltungs- und Gewerbebau
Care – Pflege- und Gesundheitseinrichtungen
Kitas und Bildungseinrichtungen
Hotels
Nachverdichtung & Aufstockung
Serielle thermische Sanierung
Karriere
Rhomberg Bau Mitarbeiter mit Schutzhelm und rotem Hintergrund, lächelnd und blickt zur Seite (Stellen).
Aktuelle Stellenangebote
Mehr erfahren
Das sind wir
Stellenportal
Rhomberg als Arbeitgeber
Lehre
Schüler:innen & Student:innen
Leben & Arbeiten in Vorarlberg
FAQ & Kontakt
Über uns
Frau präsentiert das Rhomberg Kundenmagazin "Neue Dimensionen" gedruckt und als Online-Version auf einem Smartphone.
Online Magazin
Mehr erfahren
Unternehmen
Organisation
Geschichte
Leitbild
Standorte
Zertifikate & Auszeichnungen
Verantwortung & Engagement
Compliance
Unser integriertes Managementsystem
Nachhaltigkeit
Innovation
Blick auf den Gemeinschaftsfreibereich in Leopoldsdorf mit einer Familie, Spielplatz, Kiesweg und modernen Wohngebäuden im Hintergrund (Wiesen, Bäumen).

LEOVITA | Haus 6 Top 04

  • Home
  • >Immobilien
  • >LEOVITA | Haus 6 Top 04
Zurück zur Projektübersicht

LEOVITA – EINFACH MEHR VOM LEBEN

2333 Leopoldsdorf, Achauerstraße 14 / Arbeitergasse 12

 

Vielfältig, offen und individuell – so präsentiert sich Leovita im schönen Leopoldsdorf bei Wien. Genießen Sie die grüne und ruhige Umgebung und profitieren Sie gleichzeitig von der raschen Anbindung an die Wiener City! 

Eingebettet in eine harmonische Ortschaft und umgeben von weitläufigen Wiesen lockt die Grünanlage mit bunten Erholungsoasen und Spielplätzen zum Genießen, Entdecken und Gestalten in nachbarschaftlicher Atmosphäre. Inmitten von Bäumen, Gräsern und Stauden lässt sich die Natur in vollen Zügen genießen – Frischluft, Ausgleich und entspanntes Miteinander garantiert! Die herrliche und sonnenverwöhnte Umgebung bietet reichlich Möglichkeiten für Aktivitäten unter freiem Himmel. 
 

Insgesamt wurden 82 Wohneinheiten, darunter 15 reihenhausartige Wohnungen, für unterschiedliche Ansprüche ausgewogen miteinander kombiniert.

Entscheiden Sie sich zwischen zwei, drei, vier oder fünf Zimmern auf Wohnflächen von 51 bis 130 m2. Selbstverständlich punktet jede der Wohneinheiten mit mindestens einem Freibereich, der genügend Raum zur freien Entfaltung bietet.

Alle Wohneinheiten überzeugen mit edlen Eichenparkettböden, bodentiefen Fensterfronten und einer exklusiven Badausstattung von namhaften Herstellern. Haptisch angenehme Materialien und hochwertige Armaturen machen Ihr Leben komfortabel. 3-fach-Isolierglasfenster und von einer Fernwärmeanlage gespeiste Fußbodenheizungen schaffen ein perfektes Raumklima und unterstützen Sie zudem beim Energiesparen. Barrierefreie Hauseingänge, eine einbruchssichere Eingangstür der Klasse 3 sowie eine Gegensprechanlage, die mit einer Videofunktion erweitert werden kann, bieten Ihnen bequeme Sicherheit.

 

·         HWB: 29–35 kWh/m2a  fgee: 0,80–0,84

 

Zur richtigen Zeit am richtigen Ort:

·         2 Min. Fußweg zu den Buslinien 226 & 227

·         2 Min. Fußweg zur Volksschule

·         3 Min. Fußweg zum Billa Plus

·         4 Min. Fußweg zum Kindergarten

·         4, Min. Fußweg zur Apotheke

·         8 Min. Busfahrt zur U1 (Oberlaa)

·         3. Min Autofahrt zur Auffahrt B16

·         8 Min. Fahrradfahrt zum Badeteich und zum Bahnhof Maria Lanzendorf


Stellplatz:

Die Wohnanlage Leovita ist autofrei, Ihren PKW können Sie in der hauseigenen Tiefgarage oder auf einem Freistellplatz parken.

·         € 11.000          Stellplatz im Freien

·         € 18.000          Tiefgaragenstellplatz

·         € 19.360          Tiefgaragenstellplatz mit E-Tankstellen Vorbereitung

 

Kaufpreis:

·         Provisionsfrei direkt vom Bauträger

 
Ansprechpartner:
Sehr gerne steht Ihnen Herr Vogelsinger jederzeit unter 0043 664 8348138 zur Verfügung.

 

Exposé herunterladen
Wohnfläche

102,94 m2

Anzahl der Zimmer

4

Geschossart

1.OG

Kellerfläche

5,4 m2

PKW Abstellplatz

Tiefgarage

Immobilienart

Wohnung

Bauart

Neubau (Erstbezug)

Heizwärmebedarf (HWB)

30 kWh/m2a

Heizwärmebedarf Klasse

B

Gesamtenergieeffizienz-Faktor (fGEE)

0,81

Kaufpreis

EUR 584.600,00

Alle Fakten

Alle Fakten

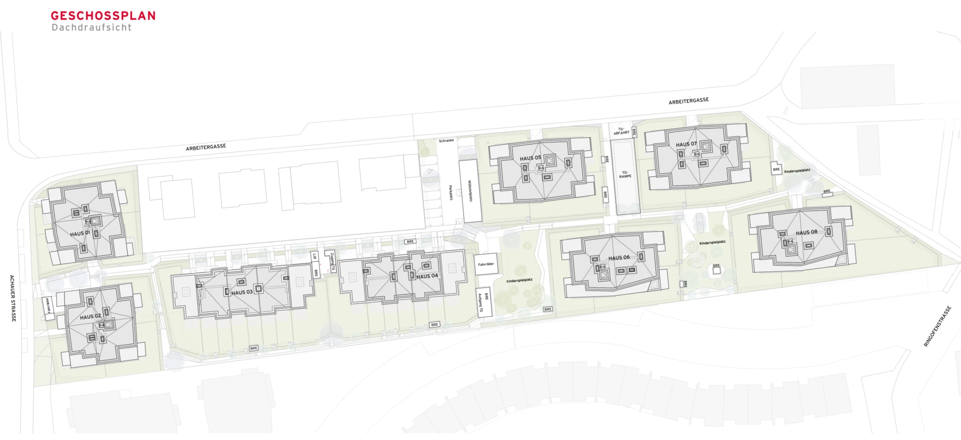
Grundriss Lageplan
Leovita Haus 06 TOP 04 Grundriss mit neun markierten Räumen und Wohnflächenangaben, inklusive Balkon und Kellerabteil in 2333 Leopoldsdorf.
Herunterladen
Übersichtsplan der LEOVITA Bebauung mit acht nummerierten Häusern, Straßen und Grünflächen
Herunterladen
Avatar

Fragen?

Nehmen Sie Kontakt mit uns auf!

Jetzt kontaktieren

Wir beraten Sie gerne persönlich
Luca Vogelsinger
Luca Vogelsinger Leitung Vertrieb Immobilien
T. +43 664 834 81 38 Nr. anzeigen
Vcard
Jetzt kontaktieren
https://www.rhomberg.com/de
Rhomberg Bau
Kontakt
  • Rhomberg Bau GmbH
  • Mariahilfstraße 29
  • A-6900 Bregenz
  • T. +43 5574 403-0
  • F. +43 5574 403-2020
  • E. info@rhomberg.com
Weitere Links
  • Download Center
  • Presse
  • Impressum
  • Datenschutz
  • Compliance
  • Hinweisgebersystem
  • Cookie-Einstellungen
Bleiben Sie informiert
Abonnieren Sie unseren kostenlosen Newsletter und erhalten Sie Unternehmensnews sowie das Rhomberg Kundenmagazin.
Jetzt abonnieren
Folgen Sie uns