
Büroräumlichkeiten Top 10/003

Besserer Standort, bessere Perspektiven - Der Standort mit Visionen für die Zukunft
Rhomberg’s Fabrik ist Österreichs drittgrößter Wirtschaftspark und liegt zentrumsnah in der Nähe der Stadtstraße (B190), der Dornbirner Hauptverkehrsader. Das Areal ist bequem mit dem Auto oder öffentlichen Verkehrsmitteln sowohl vom Stadtzentrum als auch überregional erreichbar. Zirka 90 Unternehmen mit rund 1.000 Mitarbeitern nutzen die etwas 48.000 m² Gewerbeflächen auf dem Gelände der ehemaligen Textilfabrik.
Ein Unternehmen stellt individuelle Ansprüche an seine Umgebung. Daher findet jeder Mieter im Wirtschaftspark „Rhomberg’s Fabrik“ sein ganz persönliches Umfeld. Gleichzeitig bekommen die Konsumenten ein breit gefächertes Branchen-Angebot auf komprimiertem Raum.
Die nahezu vollständige Auslastung und langjährige, zufriedene Mieter bestätigten das hervorragende Betriebsumfeld. Moderne Infrastruktur, individuelle gestaltete Mietobjekte und ein gutes Umfeld für Businesstermine – im Seminarzentrum oder im Gasthaus „Färber’s“ – zeichnen den Standort aus und geben der konsequenten Umsetzung des Konzeptes recht.
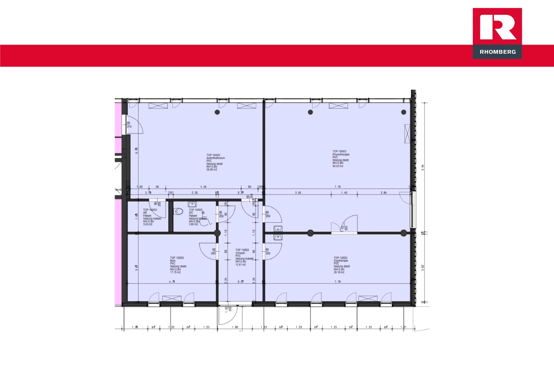
Die Büroräumlichkeiten umfassen ca. 156 m² Nutzfläche mit hohen Raumhöhen (ca. 2,8 m) und befinden sich im Erdgeschoss von Haus A. Die Räume sind hell und freundlich gestaltet und verfügen über eine Kühlung, PVC-Belag, ein barrierefreies WC, EDV-Verkabelung über Bodendosen sowie ein elektronisches Zutrittssystem. Zusätzlich verfügt ein Raum über eine vollständig ausgestattete Küche mit Backofen, Cerankochfeld und Spülmaschine. Kostenlose Kundenparkplätze sind im Areal vorhanden. Stellplätze für Mitarbeiter können im angrenzenden Parkhaus um € 56,- netto p.m. zzgl. € 13,50 p.m. Betriebskostenpauschale gemietet werden.
156 m2
Bürofläche
auf Anfrage

Fragen?
Nehmen Sie Kontakt mit uns auf!
Jetzt kontaktieren
